TBM dizalica TBM dizalica TBM dizalica TBM dizalica TBM dizalica TBM dizalica TBM dizalica TBM dizalica TBM dizalica TBM dizalica TBM dizalica TBM dizalica TBM dizalica

Krajnja kolica dizalice

Dom / Proizvodi / Krajnja kočija / Krajnja kolica dizalice

Krajnja kolica dizalice

Proizvodi

Krajnja kolica dizalice jedna su od važnih komponenti konstrukcije dizalice. Dio je sustava kranskog mosta. Njegova glavna funkcija je nošenje pokretnog mehanizma dizalice i podrška cjelokupnom radu dizalice. Krajnja kolica dizalice nose opterećenje cijelog sustava mosta dizalice, težinu same dizalice i težinu tereta. Ima dovoljnu nosivost i stabilnost kako bi se osiguralo da se dizalica neće deformirati ili oštetiti tijekom rada. Ova krajnja kolica dizalice surađuju sa sustavom gusjenice i kotača, tako da se dizalica može glatko i točno kretati duž staze. Njegov dizajn mora osigurati dobar kontakt između kotača i gusjenice. Podržava pogonski sustav i upravljački sustav dizalice. Tijekom rada, pokretni mehanizam dizalice, pogonski motor i druga oprema pričvršćeni su na krajnju gredu. Neke zaštitne strukture dizajnirane su na krajnjoj gredi kako bi zaštitile unutarnji električni sustav dizalice, mehanički sustav itd. od vanjskih utjecaja okoline.

  • Specifikacija
  • O TBM-u
  • Kontaktirajte nas
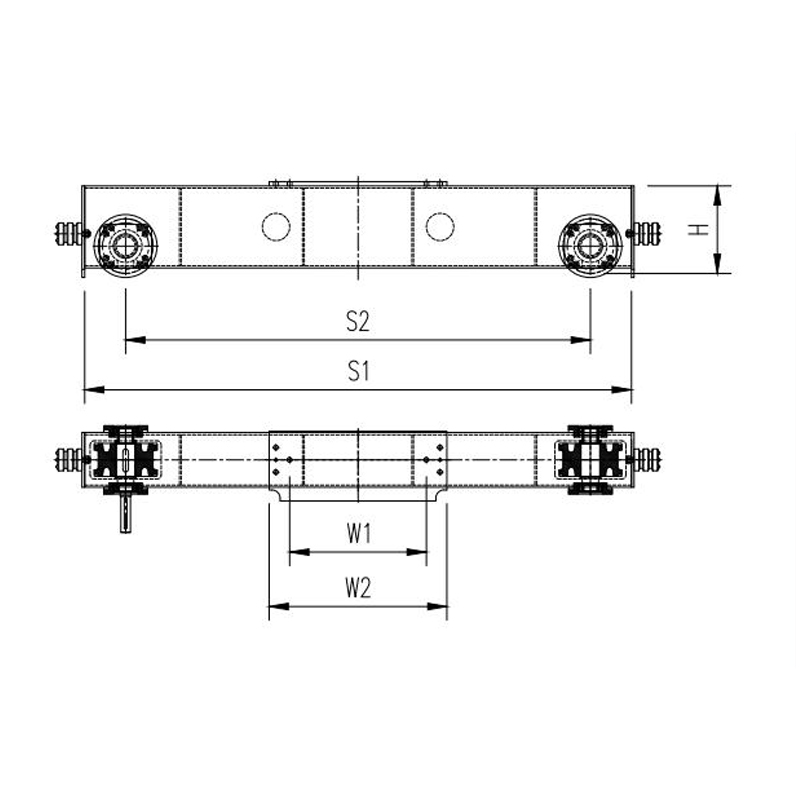
Model Primjena modela dizalice Specifikacija kvadratne cijevi Veličina kotača Model motora S1 (mm) S2 (mm) W1 (mm) W2 (mm) H (mm)
UL125-15 3,2t-7,5m 150x200x8 U125x60 FA27-0,55kW-73 1500 1280 400 550 212.5
UL125-20 3,2t-11,5m 2000 1780 400 550 212.5
UL125-25 3,2t-16,5m 2500 2280 400 550 212.5
UL125-30 3,2t-22,5m 3000 2780 500 650 212.5
UL125-35 3,2t-28,5m 3500 3280 600 750 212.5
UL160-15 6,3t-7,5m 150x250x8 U160x70 FA37-0,75kW-60 1500 1200 400 550 270
UL160-20 6,3t-11,5m 2000 1700 400 550 270
UL160-25 6,3t-16,5m 2500 2200 400 550 270
UL160-30 6,3t-22,5m 3000 2700 500 650 270
UL160-35 6,3t-28,5m 3500 3200 600 750 270
UL200-20 12,5t-11,5m 200x300x10 U200x70 FA47-1,1kW-48 2000 1700 500 650 320
UL200-25 12,5t-16,5m 2500 2200 500 650 320
UL200-30 12,5t-22,5m 3000 2700 600 750 320
UL200-35 12,5t-28,5m 3500 3200 600 750 320
UL250-20 16t-11,5m 200x400x10 U250x90 FA57-1,5kW-39 2000 1600 500 650 425
UL250-25 16t-16,5m 2500 2100 600 750 425
UL250-30 16t-22,5m 3000 2600 600 750 425
UL250-35 16t-28,5m 3500 3100 700 850 425
UL315-30 20t-16,5m 200x400x10 U315x80 FA67-2,2kW-32 3000 2500 600 750 430
UL315-35 20t-22,5m 3500 3000 600 750 430
UL315-40 20t-28,5m 4000 3500 700 850 430
Zhejiang Shuangniao Lifting Equipment Co., Ltd. je tvrtka za specijalnu opremu specijalizirana za istraživanje i razvoj, proizvodnju, marketing i postprodajne usluge električnih dizalica sa žičanom užadi. Od svog osnutka, tvrtka je veliku važnost pridavala razvoju novih proizvoda i tehnološkim inovacijama, te se fokusirala na visoke početne točke i visoke konfiguracije. U istraživanju i razvoju električnih dizalica, dok kontinuirano uvodi stranu naprednu tehnologiju, aktivno razvija istraživanje i razvoj novih električnih dizalica u europskom stilu i uspostavlja temeljni koncept "inovacija vodi budućnost, fokus na postizanje prekrasnih", koji je postao lopatica razvoja domaćih električnih dizalica i vodi razvoj domaće industrije električnih dizalica.
[#unos#]
O nama
Zhejiang Shuangniao Lifting Equipment Co., Ltd.
Zhejiang Shuangniao Lifting Equipment Co., Ltd.

Zhejiang Shuangniao Lifting Equipment Co., Ltd. je tvrtka za specijalnu opremu specijalizirana za istraživanje i razvoj, proizvodnju, marketing i postprodajne usluge električnih dizalica sa žičanom užadi. Od svog osnutka, tvrtka je veliku važnost pridavala razvoju novih proizvoda i tehnološkim inovacijama, te se fokusirala na visoke početne točke i visoke konfiguracije. U istraživanju i razvoju električnih dizalica, dok kontinuirano uvodi stranu naprednu tehnologiju, aktivno razvija istraživanje i razvoj novih električnih dizalica u europskom stilu i uspostavlja temeljni koncept "inovacija vodi budućnost, fokus na postizanje prekrasnih", koji je postao lopatica razvoja domaćih električnih dizalica i vodi razvoj domaće industrije električnih dizalica.

Vijesti